In het huis van deze Almeerders staan veel meubels van Rivièra Maison. Ook de tuin krijgt een zomerse, Long Island sfeer. Openslaande deuren naar de veranda, de warme uitstraling van hout. Op je blote voeten door het gras lopen naar de bubbelende jacuzzi. Overal staan zitjes om elk zonnestraaltje op te kunnen vangen.
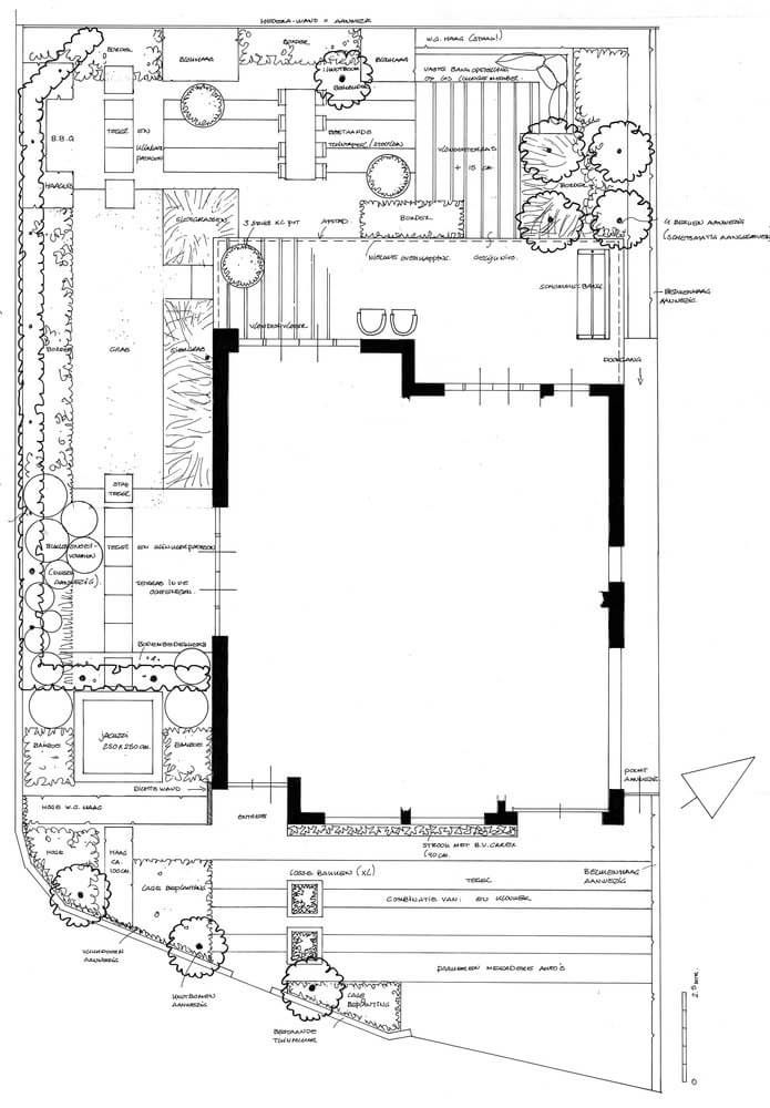
Uitnodigende buitenplaats
Uitnodigende buitenplaats
Onze tuinontwerpster creëert vaker hoogteverschil, ook al is het maar 15 centimeter. In deze tuin is het vlonderdek ‘gelift’ naar dezelfde hoogte als de verandavloer. Dit nodigt direct uit om naar buiten te lopen. De looproute van de keuken naar de ‘chillplek’ is precies in de middenlijn van de keukendeur ingetekend zodat alle lijnen kloppen. Een tapijt van tegels op de klinkervloer vormt een (visuele) loper waarop in het midden tussen de pui en de schutting de tuintafel staat.
Is deze tuin niet eerder in een magazine verschenen?
U leest meer over deze tuin in deze reportage in het magazine LA Almere
“Het is genieten van de kleuren van uitbundig bloeiende hortensia’s en de gefilterde schaduw van de grote leiplatanen.”











