In dit bijzondere ‘Spiegelhuis’ – op een mooie plek aan het bos in Noorderplassen-West in Almere – is het uniek thuis komen. Het ‘Spiegelhuis’ is een gelijkvloerse woning, licht opgetild met een vloeroppervlak van 110 vierkante meter en met een gelijmde spiegelende glasgevel.
Ongehinderd uitzicht
Tel huis en tuin bij elkaar op en je hebt een warme verbinding met de natuur. Want de gevel reflecteert zowel de bosrijke omgeving als de experimentele woningbouw in de wijk. Vanuit het huis kunnen de bewoners ongehinderd van het uitzicht genieten. De 17 meter lange raampartij beslaat de gehele achterzijde van de woning waardoor de tuin echt een verlengstuk is van het huis. Heerlijk privé dus.
Praktische oplossingen
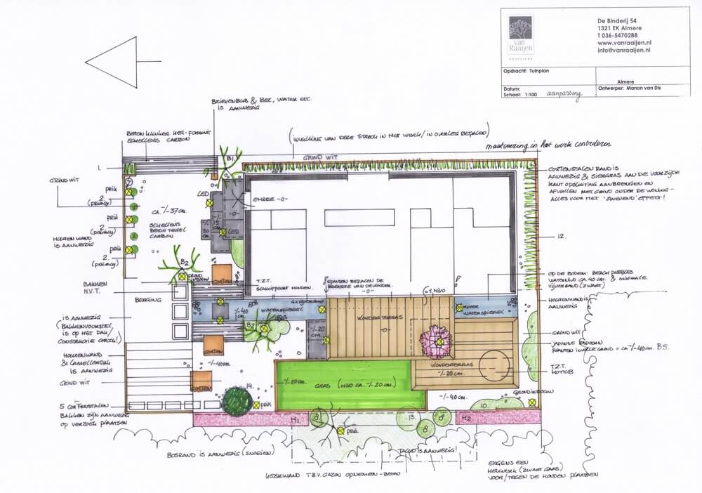
Bijzonder aan deze tuin is dat de opdrachtgevers zelf het eerste ontwerp hebben uitgewerkt. Onze tuinontwerpster Manon heeft met praktische adviezen de vertaalslag gemaakt naar de (bouw)technische mogelijkheden. In de tuin valt direct de ruime, zwevende houten vlonder op, met daarin een uitsparing voor de prachtige roodgekleurde esdoorn. Deze Japanse esdoorn op stam – een langzame groeier – is een echte eyecatcher. Het geheel van zitelementen, waterpartij, gazon en de bosrijke omgeving maken deze heerlijke buitenplaats compleet.
U leest meer over deze tuin in deze reportage in het magazine LA Almere
“Zoals in elk bouwproces moesten ook hier een paar hobbels genomen worden. Belangrijk is dat er wordt meegedacht en dat de uitdagingen worden aangepakt. Wij hebben gemerkt dat je ’t samen met Van Raaijen altijd goed oplost.”







