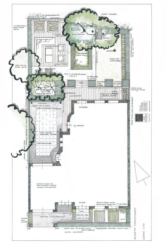
De bewoners van dit statige herenhuis aan het Vondelpark in Amsterdam willen aan de achterzijde van de tuin – bij het water – lekker besloten kunnen zitten. Er komen regelmatig gasten op bezoek waardoor er ook een ruime eettafel moet komen, net als een terras bij de openslaande tuindeuren. De wens is ook parkeren op eigen terrein en voor de kinderen een speelhut en voetbalveldje.
Slimme oplossingen
Tuinontwerpster Manon gaat aan de slag met de uitdaging om enerzijds de beslotenheid en privacy te waarborgen en anderzijds zicht te hebben op het prachtige park. De oplossing: een rij Buxusbollen. Op het loungeterras aan het water biedt dit groen de privacy die de bewoners graag willen. En als je gaat staan, kijk je zó over het water het park in. Bij het huis zorgen Rododendrons voor privacy. Parkeren op eigen terrein kan via de praktische doorrij-garage.
Flinke uitdaging
In de oude situatie deed de achtertuin dienst als parkeerruimte bij de kantoorvilla. Nu ligt er een rijke tuin op een bijzondere plek, in hartje Amsterdam. De aanleg van zo’n tuin midden in de stad is overigens best een flinke uitdaging. De aannemer heeft ruimte nodig voor de opslag van bouwmaterialen en de tuin is vaak het slotstuk van een verbouwing. Kwestie van goed plannen.
U leest meer over deze tuin in deze reportage in het magazine LA Almere











