Het is hartje winter als deze bewoners ons vragen of we meer tuingeluk kunnen creëren. Het echtpaar woont op dat moment zo’n acht jaar in de geschakelde woning in Almere met aan de achterzijde vrij uitzicht op de Noorderplassen. Een toplocatie, maar helaas (nog) geen tuin die écht gelukkig maakt.
Wensen samengevat
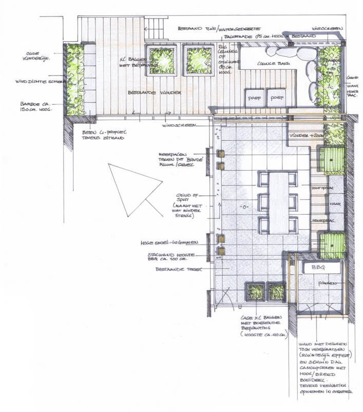
De wensen van de bewoners kort samengevat: een betere verbinding maken tussen binnen en buiten, aansluiting vinden op de stijl van het interieur, het realiseren van een buitenhaard en de toepassing van onderhoudsvriendelijke beplanting. Achter de tekentafel krijgt het creatieve proces stap voor stap vorm op papier.
Direct enthousiast
De bewoners zijn tijdens de bespreking direct enthousiast over het tuinontwerp met de antraciete XL formaat bloembakken met siergrassen, de loungehoek aan de balustrade en de tuinafscheiding met verstelbare, horizontale lamellen. Ook de bebouwing rondom de buitenkeuken valt in de smaak. En natuurlijk de buitenhaard met houtopslag. De mooie raampartij tussen de woonkamer en de tuin vormt de verbinding tussen buiten en binnen.
Update: Nu de bewoners hun nieuwe tuin écht hebben kunnen beleven wordt voor de wind vanaf de Noorderplassen alsnog overwogen om de voorgestelde glazen wanddelen te laten plaatsen aan de steiger.
U leest meer over deze tuin in deze:
“Stuk voor stuk toppers, die mannen van de aanleg. Heel prettig om mee samen te werken. En ook de timmerman heeft hart voor zijn vak. Zelfs tijdens de aanleg werd er meegedacht en zijn er praktische aanpassingen gedaan die de tuin nóg beter maken. Zo hebben we nu twee zitbankjes die we kunnen verplaatsen in plaats van één.”
“Of we heimwee hebben naar de oude tuin? Helemaal niet. Het is zó heerlijk genieten in onze nieuwe tuin. We genieten er zelfs al van als we van binnen naar buiten kijken.”










