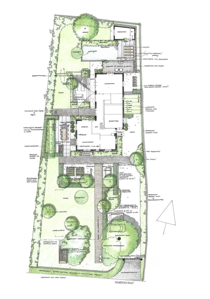
Een zwemvijver is een natuurlijk alternatief voor een zwembad. Zomers is het water aangenaam en kun je zwemmen in je eigen tuin, de rest van het jaar ziet de zwemvijver er mooi en natuurlijk uit.
Zwemvijver(tuin) aan de rand van heide en bos
Een zwemvijver is een natuurlijk alternatief voor een zwembad. Zomers is het water aangenaam en kun je zwemmen in je eigen tuin, de rest van het jaar ziet de zwemvijver er mooi en natuurlijk uit.
Het eerste zaadje
Het zaadje voor deze nieuwe tuin wordt geplant aan de keukentafel, tijdens de kennismaking met de bewoners. Al snel wordt duidelijk dat dit gezin de tuin ten volste wil gaan benutten. Dit wordt geen strakke tuin om naar te kijken, maar een natuurlijke gezinstuin waarin iedereen zich happy voelt.
Natuurlijke (speel)tuin
In het tuinontwerp behouden we natuurlijk het zicht op de hei en bossen om zo ook van het omringende landschap te kunnen blijven genieten. Verder is er volop speelruimte voor de kinderen. Zo is er een boshut, zijn er schommels en slingertouwen en is er een trampoline waar vandaan je zo in de zwemvijver kunt springen.
Comfort en gemak
De met natuur omringde tuin is voorzien van alle comfort en gemak. Naast zwemmen en spelen kan het gezin ook eten uit eigen tuin. Verder is er volop ruimte voor ontspanning bij meerdere zitplekken. Minder in het oog springen de – o zo belangrijke – ondergrondse voorzieningen voor het verlichtingsplan en de volautomatische besproeiing.
U leest meer over deze tuin in dit artikel in het magazine Chic Gardens
Tuin met zwemvijver
“Onze verwachtingen zijn overtroffen. Het is nog mooier geworden dan op papier.”















