De tekening werd heel anders dan ik verwacht had. Het is veel beter geworden dan we ooit voor mogelijk hadden gehouden. Van mijn ideeën over de indeling van de tuin bleef weinig over. We besloten te vertrouwen op het vakmanschap van Van Raaijen en daar hebben we geen moment spijt van. We vielen van de ene verrassing in de andere.
De tuin is behalve om naar te kijken vooral een buitenruimte om in te leven. Een plek om tot jezelf te komen, waarin je alle dagelijkse beslommeringen even kunt vergeten. Meer dan ooit is een tuin iets persoonlijks; maatwerk dus.
Ook voor het ontwerpen van exclusieve tuinen geldt: eerst denken, dan doen. Een creatief en doordacht tuinplan is hét belangrijke vertrekpunt voor de realisatie van uw tuin vol geluksmomenten. Deze vertaalslag van alle tuinwensen op papier voorkomt dat we zaken over het hoofd zien. Wij werken aan unieke tuinontwerpen – in de basis zeer uitgebreid én toekomstproof – die een uitstekende basis vormen voor de tuinaanleg.

Onze werkwijze
Een tuin weerspiegelt altijd iemands persoonlijke eisen en wensen. Dit betekent dat wij eerst op zoek gaan naar uw (tuin)gevoel tijdens de kennismaking in onze tuinstudio. We bespreken diverse stijlen en sferen aan de hand van ‘moodboards’. Natuurlijk verdiepen we onszelf ook in uw woonsituatie; een optimaal tuinontwerp past immers bij u én uw woonomgeving. Op basis van dit eerste gesprek ontvangt u een offerte voor het tuinontwerp.
Het proces, in 5 fasen
Na uw opdracht voor het tuinontwerp, gaat onze ontwerper voor u aan de slag. We gaan stap voor stap vorm en invulling geven aan uw tuinontwerp in deze 5 fasen:
- We starten met een intake en inventarisatie bij u op locatie, we meten de tuin in en brengen de bestaande situatie in kaart;
- Op basis van de verkregen informatie en inspiratie werken we het (concept) tuinontwerp uit in kleur en op schaal, we nodigen u uit voor de presentatie;
- We verwerken eventuele aanpassingen en werken het definitieve tuinontwerp uit. Ook geven we verder invulling aan het materiaalgebruik. We kijken uit naar uw reactie tijdens de presentatie;
- We werken het beplantingsplan uit op basis van uw wensen en voorkeuren, de omgeving, grondsoort, natuurlijk rekening houdend met natuurinvloeden zoals zon en wind. Wij combineren creativiteit en een grote dosis plantenkennis. Bekijk een voorbeeld van een plantbrochure.
- Oplevering van het complete tuinontwerp/inrichtingsplan, beplantingsplan inclusief plantbrochure en (indien gewenst) verlichtingsplan.
Gemiddeld bedraagt de investering in een compleet tuinontwerp/inrichtingsplan zoals hierboven omschreven € 2.000,00 inclusief BTW. Dit is afhankelijk van de grootte van uw perceel en de complexiteit van het ontwerp inclusief eventuele benodigde technische/bouwkundige details.
Op basis van het complete tuinontwerp kunnen we u een gespecificeerde aanbieding doen voor de aanleg van uw nieuwe tuin. Bent u benieuwd naar onze ideeën voor uw tuinontwerp? U kunt hier een offerte aanvragen
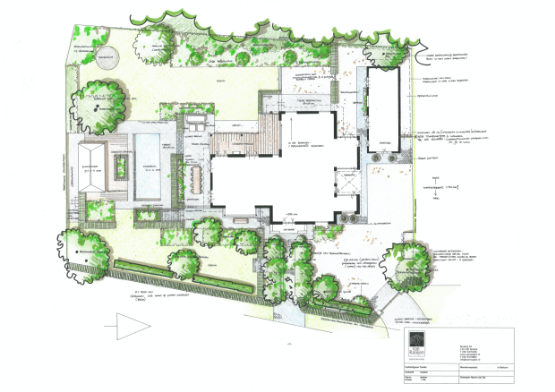
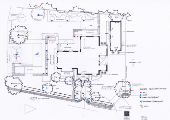
In onderstaande (5) beelden geven we u een impressie van de onderdelen van het complete tuinontwerp.
Wie ontwerpt uw tuin?
Wij werken samen met diverse tuinarchitecten en -ontwerpers. Na de kennismaking weten wij welke professional het beste bij u, uw wensen en behoeften past. Ook tijdens het keuze- en ontwerpproces kunt u rekenen op onze praktische adviezen. Een tuinontwerp is meer dan een mooi plaatje. Naast de juiste uitstraling komt het ook aan op de juiste materiaalkeuze, gewenste functionaliteit en praktische, efficiënte oplossingen voor de aanleg.
Bent u benieuwd naar de diversiteit van ons werk? Neem ’s een kijkje op de pagina Tuinprojecten

Wilt u meer weten over onze ontwerpideeën voor uw tuin? We ontvangen u graag in onze tuinstudio.








